Build a Finnish Type Shelters Under a License
Atmas in cooperation with Karanttia from Finland offers a unique opportunity to localize manufacturing of Finnish designed S1 prefabricated shelters under a license and complete support on different stages of the project.
Key Preferences
-
Certified and Tested solution from company that delivered over 8000 shelters
-
Complete support in localization of solutions
-
Complete set of required equipment
Shelters in Finland
-
Finland building civil defence shelters starting from 1954. The Ministry of the Interior is responsible for legislation related to civil defense, and the rescue services are responsible for the implementation of civil defense in a crisis situation.
-
In 2023, there were 55,500 civil defense shelters in Finland for 4.8 million people.
-
About 560-700 shelters are built annually in Finland.
-
The construction costs have been paid by the building owners, and they have been able to define the use of the shelter during normal conditions.
-
The construction obligation applies to the entire country and covers all new buildings under the following conditions:
-
Shelter obligation of 2% of the building’s gross floor area in residential buildings exceeding 1200m²
-
Shelter obligation of 1% of the building’s gross floor area in industrial, production, storage, and assembly buildings exceeding 1500m²
-
The shelter area is at least 0.75m² per person
-
-
There are three different types of shelters in use in Finland: S1, S2, and rock shelters.
-
S1 shelters with area of 20m²-135m²
-
S2 shelters with area of up to 900m²
-
Rock shelters with area of up to 4500m².
-



We offer you a Licensed Design and Local Manufacturing of Finnish Type Prefabricated S1 Shelters
Atmas Group and Karanttia® from Finland jointly offer partners worldwide a localized manufacturing of prefabricated shelters according to Finnish licensed design.
Karanttia has almost 40 years of experience in construction of prefabricated civil defence shelters in Finland with nearly 8,000 shelter deliveries behind it.
What we offer
-
Licensed shelter design
-
Guidance in establishing the localized production
-
Supply of all required shelter equipment
-
Consultation and Project support
Prefabrication Advantages
-
Reduced loss of building materials
-
Construction quality and workers’ improved occupational safety
-
Shorter lead times
-
The construction site remains tidy
-
More efficient logistics chains
-
Improved installation efficiency
-
No unexpected or unpredictable additional costs or delays during on-site construction work
-
Reduced on-site overhead costs
-
Improved humidity control
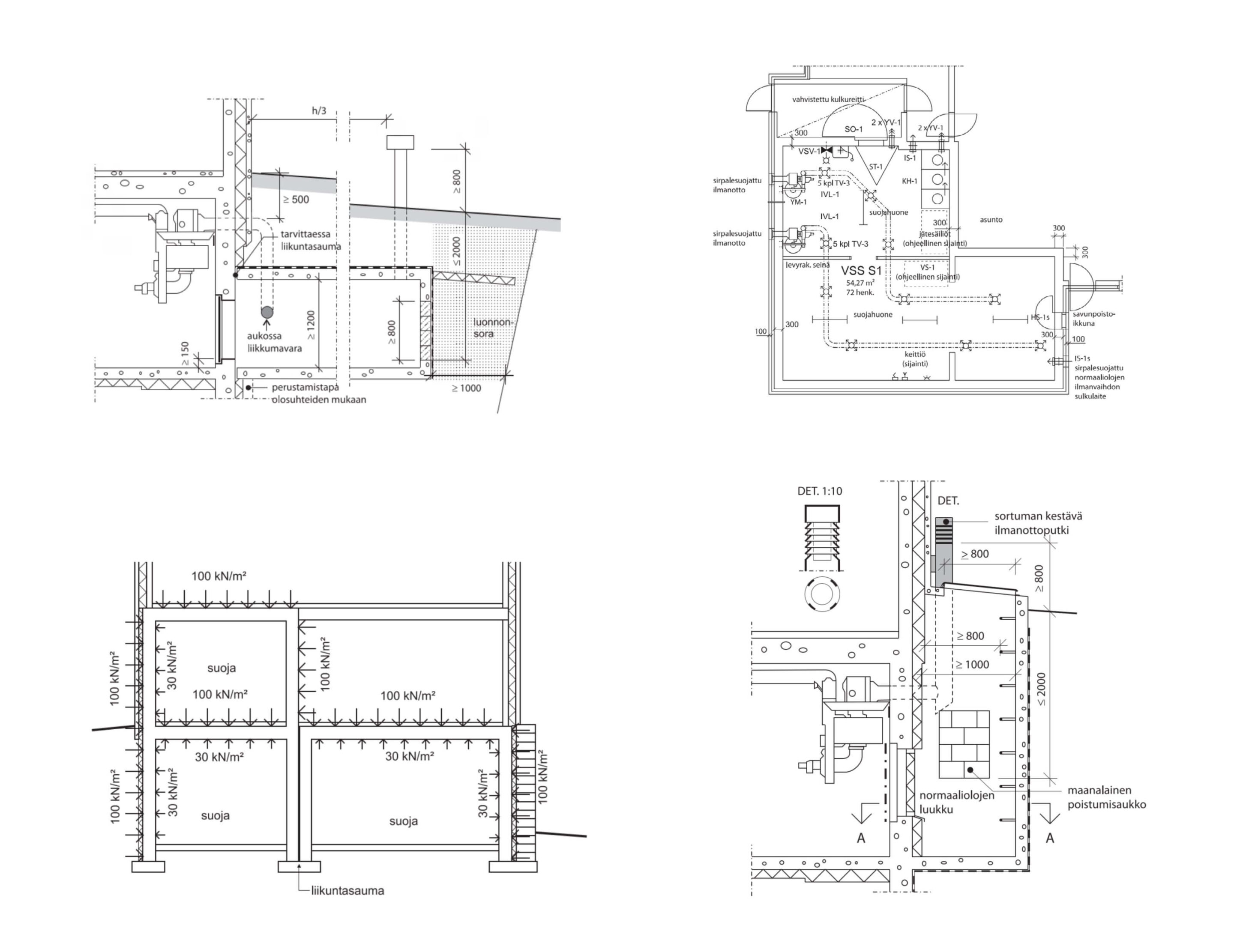
We Provide the Complete Emergency Layout Shelter Design According to Finnish Shelter Norms
Karanttia specialist will provide the customer with the certified design of the shelter including all the required by the Finnish standard elements and placement of equipment. This will allow to receive fast and professional design and start production in minimal time.

Equipment for Finnish Shelters
CBRN Filtration System IVL-1
The IVL-1 is designed for S1 class civil defence shelters. The ventilation unit is designed to maintain overpressure in the civil defence shelter during a crisis and filters harmful gases and particles from the
supply air passing through the unit

SO-1 Shelter Blast Doors & HS-1 Hatches
-
A family of heavy-duty blast rated and gastight doors and hatches that designed both for installation in Finnish civil defence shelters or other type of protected structures. The doors designed according to Finnish standard requirement and can be also customized to fit specific requirements.

Spare water tank VS-3
Fluid-Bag reserve water tanks can hold up to 1000 liters. The tank is light when empty and takes up little space. The tank is completely sealed and airtight, which keeps the water clean. The tank can be washed.

Door Entrance Barrier Tent ST-1
The shelter tent is intended for S1 class civilian shelters. In a crisis situation, a containment tent is installed in front of the evacuation shelter’s access door, preventing outside air containing hazardous substances from entering the shelter.

Dry Toilet Foldable Cabin KH-3
The KH-3 dry toilet cubicle is delivered individually or in groups of two cubicles.
The dry toilet cubicle is normally stored unopened in its packaging.

Dry toilet furniture KK-3
The plastic dry toilet container has a capacity of 38l. The containers are stored inside each other. Sizing: 1 container for every 20 m2 of actual protected area.
Delivery includes:
-
Toilet bowl
-
Metal mounting hinge with lid and seat ring attached
-
16 plastic bags and tie strings

Waste Container JS-3
The plastic container has a capacity of 100 l. The container has a lid and carrying handles. When empty, the container weighs 4 kg. Storage is done by stacking it inside each other.
Height 700 mm, diameter 48 mm.
Dimensioning: 15 l per m2 of actual protected area

Emergency Equipment Box for Shelters
The equipment is delivered packed in one box, which also serves as a storage box for the protective materials.
The content and amount of protective material varies depending on the number of people in the property or the number of people in the shelter.

Additional Shelter Equipment
-
Beds and Special furniture
-
Personal Protective Equipment
-
CBRN Decontamination Solutions
-
Dry toilets
-
Water tanks & storage solutions

Request a Quote
Delivering Optimal Security Protocols and Standardized Procedures
In today’s general worldwide environment governments as well as private people must consider the growing risks, improving the preparedness and response to current and future emergencies.